Topcalf Quinto Kälberhütte
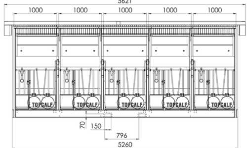
Die Topcalf Quinto Kälberhütte ist ein flexibles Einzelboxen-Stallsystem. Dank der herausnehmbaren Trennwände lassen sich ganz einfach Gruppen von zwei, drei, vier oder fünf Kälbern bilden, sodass die Tiere gemeinsam aufwachsen und ihr Sozialverhalten entwickeln können. Die Konstruktion besteht aus feuerverzinktem Stahl mit Kunststoffwänden (herausnehmbar), herausnehmbaren Rostböden und einem isolierten Dach aus Sandwichpaneelen. Sie ist leicht zu reinigen und bietet eine lange Lebensdauer. Mit einem Innenmaß von (LxB): 1625×1000 mm pro Liegeplatz entspricht die Kälberhütte den aktuellen niederländischen Vorschriften.
✓ Starkes Kälberimmunsystem: Die kontinuierliche Zufuhr von sauberer Luft fördert gesunde Lungen und unterstützt die Widerstandskraft der Kälber.
✓ Einfach regulierbares Stallklima: Der große Lüftungsschieber in der Rückwand ermöglicht eine unkomplizierte Anpassung des Stallklimas an wechselnde Wetterbedingungen.
✓ Vollständiger Schutz vor Wind und Wetter: Die Kälber liegen dank der verlängerten Seitenwände und einem Dachüberstand von 1500 mm geschützt.
✓ Hygienische und komfortable Unterbringung: Der geschlossene Unterrahmen reduziert aufsteigende Feuchtigkeit und Zugluft.
✓ Entspricht den aktuellen niederländischen Gesetzen und Vorschriften
Geliefert mit allem, was Sie brauchen:
✓ Fünf Saugeimerhalter
✓ Fünf Saugeimer
✓ Doppelte Eimerhalterungen
✓ Zehn Tränkschalen
✓ LED-Beleuchtung mit Lichtschalter
✓ Steckdose
Alles ist inklusive, sodass Sie die Hütte sofort in Betrieb nehmen können!



